


这座大楼不仅是一栋办公楼,更是一个试图以清晰的建筑语言、开放的场所精神与细腻的人文温度,为星沙这片产业热土,贡献一份沉稳、现代且充满活力的城市提案。
感谢 以靠建筑 对gooood的分享
长沙经开区,开元东路与双塘路交汇的这片城区,肌理由标准厂房、物流仓库与产业配套设施编织而成。视野开阔,天际线在厂房屋顶的韵律中展开;路网遵循效率的逻辑,却也不乏因地势与现有地块而形成的微妙转折。在这片功能导向明确的场域,星沙产业基地自贸总部大楼的诞生,怀抱着一种超越单纯容纳办公的愿望:它意图为这片区域建立一种可被感知的秩序,提供一个具有精神凝聚力的标识,并植入一份对“人”的细致关怀。在严苛的50米限高下,这个愿望并未收缩,反而催生了一种清醒的自觉——将限制视为创作的前提,在有限的体积内,经营无限的空间与视觉关系。

▲项目概览© 章勇 / 章鱼见筑
一、城市巨构:一种锚固于大地的存在方式
面对开阔却失之个性的产业园区景观,建筑首先需要确立自身清晰的存在。我们选择了一种近乎“城市巨构”(Megastructure)的设计姿态。这一概念并非我们的发明,它深深植根于上世纪六七十年代的建筑先锋思潮。当时,面对城市的急速扩张与功能混杂,以英国“建筑电讯”(Archigram)小组、日本“新陈代谢派”(Metabolism)为代表的建筑师们,构想出一种未来主义图景:建筑不再是孤立的物体,而是一个庞大的、综合的、可生长甚至可移动的复杂系统,其本身即是一座微缩城市。雷姆·库哈斯(Rem Koolhaas)后来在其著作《癫狂的纽约》(Delirious New York)中,将曼哈顿的摩天楼群视为一种现实存在的“巨构”,它们以单一的、纪念碑式的体量,内部却包裹着高度密集且多元的城市生活。星沙总部大楼的设计,可以视为对这一经典命题的一次回应。

▲轴测图© 以靠建筑

▲建筑与城市© 章勇 / 章鱼见筑

▲夕阳与建筑© 章勇 / 章鱼见筑
由于限高和容积率的需求。我们必须在紧贴红线、最大化利用场地,建筑呈现出一个坚实、完整的不等边四边体量。它没有选择碎片化或消隐的姿态,反而以一种纯粹的几何肯定性,沉稳地锚固在街角。在周边尺度巨大却往往形式失语的工业建筑群中,这种完整性与体量感,本身即成为一种沉静的宣言。它不再是一个背景,而是一个具有强大存在感的基准点,一个能让城市目光得以聚焦的“物”。这并非为了纪念性的宏大,而是为了在纷杂的肌理中,提供一种清晰可辨的场所坐标。

▲外观概览© 章勇 / 章鱼见筑
二、打开城市之窗:与城市互看的视觉机制
如果坚实的体量是建筑对外的“定”,那么体量上四角被精心切削出的巨大开口,则是建筑向城市发出的主动“邀请”。我们称这些开口为 “城市之窗”。它们绝非普通窗户的放大,而是建筑尺度上的一次战略性空间操作,是体量中有意识的“留白”。

▲由建筑看城市环境© 章勇 / 章鱼见筑

▲外观概览© 章勇 / 章鱼见筑
这些“窗”首先解放了建筑自身。它们削切了完整块体可能带来的厚重感,让光与风得以进入,建筑在视觉上变得轻盈而富有张力。但更重要的,是它们重新架构了建筑与城市的观看关系。每一个“窗”都是一个经过精密计算的巨型取景框,分别朝向一个特定的城市方向打开。远方的山峦轮廓、街道上的流动景观、更广阔的天际线,这些原本与建筑内部无关的风景,被主动地“框取”并“借”入室内,成为办公空间中流动的立体壁画。与此同时,从城市街道的不同角度望去,这些通透的巨窗也隐约透出内部的人影、灯光与活动,建筑内部的生机因而得以向外示现。

▲分析图© 以靠建筑


▲“窗”削切了完整块体可能带来的厚重感© 章勇 / 章鱼见筑
这便形成了一种“看”与“被看”的持续互动。它暗含了传统园林中“借景”的智慧,但以现代建筑的语言,在宏观的城市尺度上重新演绎。建筑不再是封闭的孤岛,而是通过这几个深刻的“景框”,与城市进行着动态的视觉对话,成为城市风景的观看者与组织者,同时也成为被观看的风景本身。


▲现代建筑的语言© 章勇 / 章鱼见筑
三、合院与空中庭院:内核的呼吸与活力的生发
在外部以“巨构”确立存在感,以“巨窗”实现对话之后,建筑的内向一面,则关乎如何为使用者营造宜人、健康且激发活力的栖居环境,我们在建筑的核心,嵌入了一个与外部轮廓呼应的内庭院,它将充沛的阳光、新鲜空气引入,也让地面层的商业空间获得了宝贵的“呼吸感”与视觉纵深感。

▲由周边公园看建筑© 章勇 / 章鱼见筑


▲街景© 章勇 / 章鱼见筑
庭院的运用进一步向垂直维度拓展,结合“城市之窗”的切削,我们在不同楼层创造了多个大小、朝向各异的空中庭院。这些地方绝非交通的剩余空间,而是被刻意设计、鼓励停留的 “空中客厅” 。在此工作的人可以在办公间隙来此处小憩或交谈,感受到的不仅是穿庭而过的微风,还有从“城市之窗”所获得的一幅幅动态画卷——或是城市街景,或是远山如黛。自然、光线、视野与偶然发生的社交,在这里被立体地编织进日常的工作体验之中。这些“院”与“台”,极大地软化了标准办公空间容易产生的刻板与疏离感,将人文的关怀与对现代办公模式中非正式交流的愿望植根于空间的体验之中。

▲鸟瞰© 章勇 / 章鱼见筑

▲远景© 章勇 / 章鱼见筑
在东北角,为顺应道路走向而形成的锐角体量,我们通过一道干净的竖向切割将其化解,并顺势将切割后的体块做层层退台处理。这么做的好处是在微观上柔化了建筑轮廓,避免了生硬的转角;在宏观上,则自然地生成了更多朝向东北方山景的室外露台,可视为“空中会客厅”系统的延伸。它是对场地边界的一种坦诚应答,也是将外部景观资源最大化利用的务实策略。此类细节,皆服务于整体设计理念的完成度。

▲远景© 章勇 / 章鱼见筑

▲日景© 章勇 / 章鱼见筑
结语
星沙产业基地自贸总部大楼以“巨构”的整合姿态回馈区域,以“景框”与城市的对话,以“院落”为核心滋养内在的活力,以“切削”与“退台”完成对场地与视线的具体关照。在五十米的高度限制下,它通过对水平方向延展、空间深度挖掘、视线精妙引导以及形体细节雕琢的综合经营,构建了一个丰富、立体且充满生机的微城市单元。


▲建筑与自然© 章勇 / 章鱼见筑
在强调功能与规模效率的语境中,我们依然努力追求一种具有几何诗意、清晰逻辑与人性尺度的形式;在速度至上的环境中,我们依然可以悉心经营一份看风景的心情、一次偶遇的契机,以及一处让人心安并乐于停留的角落。这座大楼不仅是一栋办公楼,更是一个试图以清晰的建筑语言、开放的场所精神与细腻的人文温度,为星沙这片产业热土,贡献一份沉稳、现代且充满活力的城市提案。

▲夜景© 章勇 / 章鱼见筑

▲分析图©以靠建筑
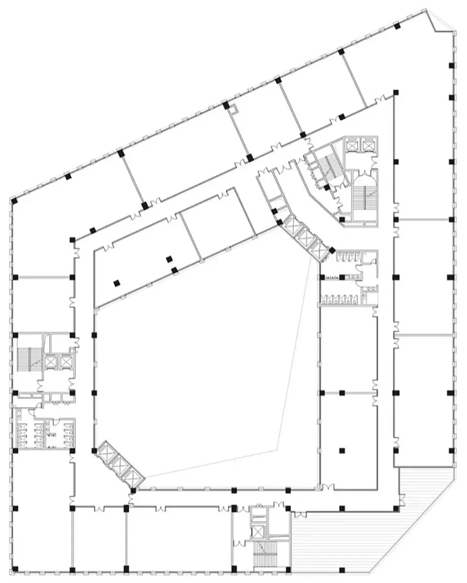
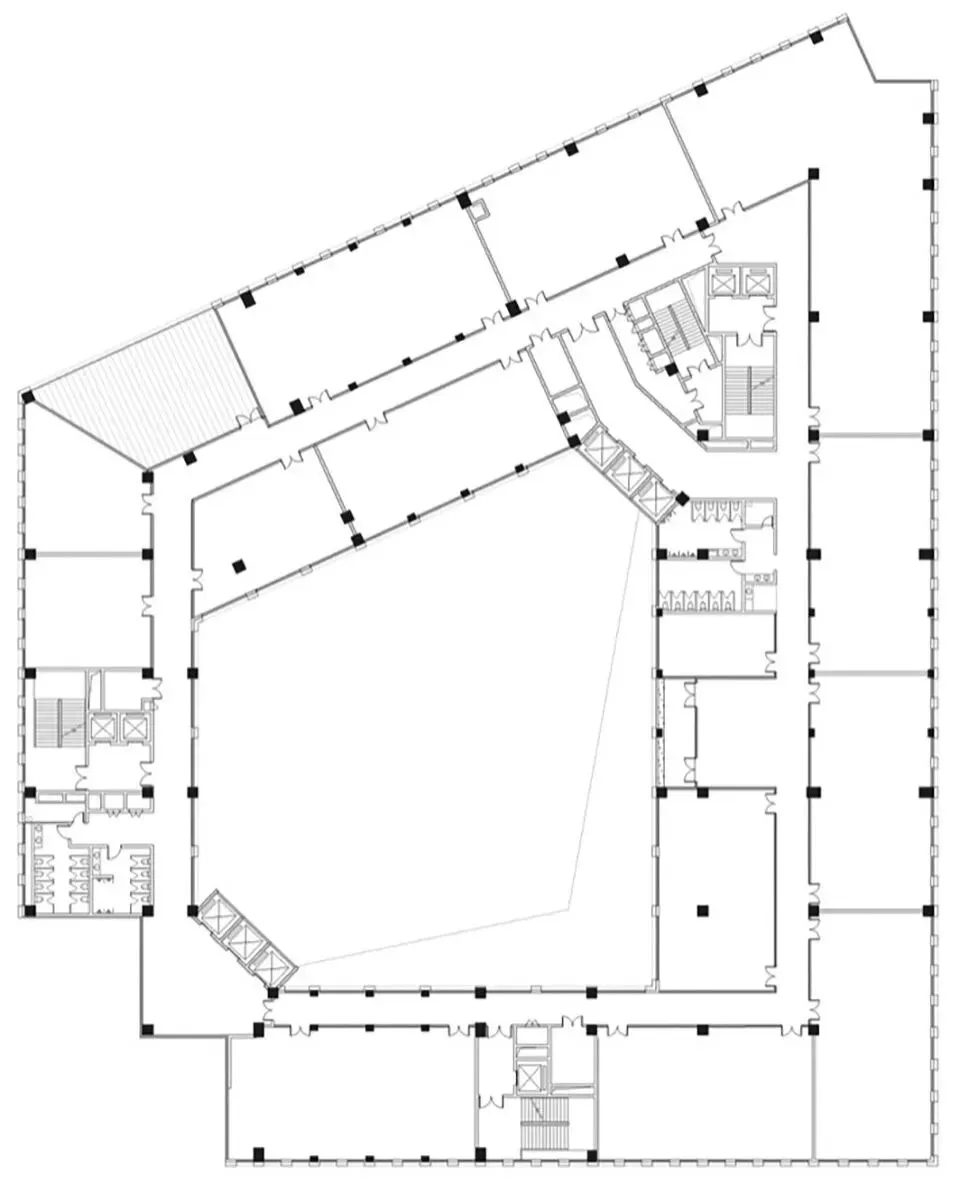
项目图纸

▲场地平面图© 以靠建筑

▲底层平面图© 以靠建筑

▲平面图© 以靠建筑

▲平面图© 以靠建筑

▲平面图© 以靠建筑




▲立面图© 以靠建筑
项目名称:星沙产业基地自贸总部大楼
项目地点:湖南省长沙市
设计时间:2021-2023
建设时间:2023-2025
建筑面积:19695m²
总设计师:李以靠 / 以靠建筑Leeko Architects
建筑设计团队:李以靠、高雪莹、潘昊伽、刘洁秋、王博、高雪莹、施瞿、杨滨瑞、陈自立、李汶翰、李敏言、苏羽茜 、郑康立/ 以靠建筑Leeko Architects
摄影:章勇 / 章鱼见筑




