建筑学始终在回答两个最古老的问题:我们如何建造,以及我们为何如此建造。阿道夫·路斯在二十世纪初给出了一个充满道德感的答案:剥去外在的浮华装饰(“装饰即罪恶”),让建筑以其体量的“形体自身之美”直面世界,而将所有关乎舒适、情感与私密性的丰饶,都向内折叠进“空间体积规划”的复杂内部宇宙之中。这是一种“外部的克制”与“内部的满足”的辩证法。© 章勇 / 章鱼见筑
稍晚的勒·柯布西耶则提供了另一条路径,他将建筑视为一部引导身体的“机器”,一条精心编排的“漫步”路径,空间的价值在于其序列、光影与视野的动态体验。而在东方,中国古典园林早已实践着另一套空间哲学:在有限的“壶中天地”里,通过“可行、可望、可居、可游”的布局,以“借景”之眼与“游观”之足,营造出无限的心灵宇宙。这三条思想脉络 —— 路斯的伦理克制、柯布西耶的动态体验、东方园林的观游智慧 —— 如同三束光,共同照亮了我们陈宅设计时的思考。© 章勇 / 章鱼见筑
© 章勇 / 章鱼见筑
01
场地的馈赠与“克制”的形体
项目始于一次决绝的告别:业主在找到我们前两年便推倒了场地上一栋欧陆风旧宅,这一行为本身即是对无根形式与消费符号的摒弃。我们面对的,是一片清空的场地、一个严格沿用旧宅红线的轮廓限定,以及几棵原地生长的树木。这一轮廓限定定义了创作的边界。在约 2000 平方米的限定范围内,我们的首要策略是“让”与“留”:以紧凑姿态将风雨廊与宅院入口贴边布置,从而在用地中央“让”出开阔草坪,为家庭生活预留活动场地。
© 章勇 / 章鱼见筑
© 章勇 / 章鱼见筑
© 章勇 / 章鱼见筑
© 章勇 / 章鱼见筑
在轮廓限定下,建筑外部形体近乎“被动”生成 —— 以谦逊姿态回应规划规则与内部功能逻辑。红砖作为一种回应的“表皮”对原有装饰风格的摒弃,让我们在材料的选择上尤为审慎。我们选择了赭红色的手工黏土砖。
© 章勇 / 章鱼见筑
© 章勇 / 章鱼见筑
© 章勇 / 章鱼见筑
© 章勇 / 章鱼见筑
这一选择具有多重的意味:其一,砖是一种诚实、带有手工温度与时间质感的材料,它的色泽会随着风雨日光缓慢变化,与自然共同呼吸,这与追求瞬时视觉刺激的装饰性格格不入。其二,在周围多是光滑面材的别墅群中,红砖的质朴与稳重,赋予建筑一种沉静的“在地性”,它不张扬,却以自带的温暖、质感与时间感赋予建筑沉静的重量,与周遭的绿意建立了一种柔和而持久的对话。
© 章勇 / 章鱼见筑
© 章勇 / 章鱼见筑
02
路径的生成:一次为了“游”与“留”的绕行
那么进入建筑的过程,则被设计为一次充满东方“游观”意趣。一个由清水混凝土整体浇筑的深挑雨棚,如舞台的序幕,将街道外的喧扰暂且隔绝。自此,一条幽净的、线性的风雨廊道,紧贴场地边界,向内蜿蜒延伸。行走于此,一侧是沿着建筑边界混凝土围墙,另一侧是渐渐展开的大草坪,视线被引导至建筑主体入口、客厅的大玻璃窗......亦被风雨廊的片墙适度地收束,心绪在行进步履中逐渐沉淀。
© 章勇 / 章鱼见筑
© 章勇 / 章鱼见筑
这条路径在即将抵达建筑主体入口时,遇到了场地给予我们的一份馈赠 —— 一棵高大的香樟树。它恰好伫立在风雨廊与建筑入口衔接的转角处。我们选择让路径温柔地“绕行”。廊道在此以一个圆滑的弧度,谦逊地避让了树木,随后再与建筑入口的雨棚自然衔接。
© 章勇 / 章鱼见筑
© 章勇 / 章鱼见筑
© 章勇 / 章鱼见筑
© 章勇 / 章鱼见筑
这个“绕行”的弧度,并非形式上的矫饰,而是对场地既有条件的尊重,也是功能逻辑的必然。为了最大化中央草坪,风雨廊必须尽量贴边;而为了保留香樟,路径必须绕行。形式在此刻,忠实地记录下了功能与场地条件相遇时所激发的真实状态。更有意味的是构造细节:廊道顶棚与建筑入口雨棚存在高差,我们在弧形转折处,将顶棚顺势“切”开一道流畅的缺口,形成自然的高低过渡。
当人行走至此,身体因弧线而微微转向,视线掠过斑驳的树皮,抬头可见一线天空从切口洒落。这棵树,这个“圆”,这个“切口”,共同构成了空间序列中一个充满惊喜的“停顿点”,一个让行走经验变得丰盈的“景”。这正是“游”的意趣所在:目的地的抵达固然重要,但路径本身的过程、沿途的偶遇与发现,共同构成了完整的体验。
© 章勇 / 章鱼见筑
© 章勇 / 章鱼见筑
03
立体的园林:空间、声音与光的流动
进入建筑室内,建筑化身为一个立体的、可居可游的游园空间。南北向剖面,一层局部下沉的客厅与有两层挑高的餐厅连通,视线可以毫无阻隔地越过庭院,投向远方,室内外的边界“消失”。东西向剖面,空间的流动性更加戏剧化:一、二层挑空的家庭餐厅,与二、三层挑空的儿童活动区,形成成一个贯通三层的“共享腔体”。这个垂直连通的空间,是设计的核心。它绝非为了形式的炫耀,而是源于对家庭生活最细腻的洞察。
剖透视 © 以靠建筑
剖透视 © 以靠建筑
当母亲在一层餐厅轻声呼唤,声音可以自然而然地向上漫溢,清晰地抵达在二层、三层玩耍的孩子耳中。反之,位于三层主卧起居室的父母,也能通过这个“腔体”,轻松地“瞰”见二层儿童活动区的动静。空间,成为了维系家庭情感的无形纽带,一种非打扰的、温暖的关注媒介。这是对柯布西耶“动态体验”理念的空间流动性一种家庭化转译——漫步不仅是身体的移动,更是视线与声音在垂直维度上的自由穿行。
© 章勇 / 章鱼见筑
© 章勇 / 章鱼见筑
© 章勇 / 章鱼见筑
© 章勇 / 章鱼见筑
光,是这立体园林中最富诗意的“漫游者”。第一缕天光从屋顶斜射入儿童活动区的挑空,随时间在墙面与地板上缓缓“行走”,像一只无声的日晷;第二束天光,则精确地落入主卧的衣帽间;第三到光柔和得进入浴室与主卧之间的走道上,将日常的起居洗漱,点化为一场与光影的私密对话。这便是在路斯“内部满足”框架下,对情感与氛围的极致追求。
© 章勇 / 章鱼见筑
© 章勇 / 章鱼见筑
© 章勇 / 章鱼见筑
© 章勇 / 章鱼见筑
04
框景:将世界引入方寸
建筑与外部世界的对话,通过一系列如画框般“精确计算”的开窗来完成。客厅的水平长窗,将草坪绿意定格为生活的全景背景;餐厅的方窗,专门对准北庭院中的一株鸡爪槭,框取一幅四季变幻的立轴画;健身房朝西的水平长条窗,则框取那棵香樟的树影入内。
© 章勇 / 章鱼见筑
© 章勇 / 章鱼见筑
© 章勇 / 章鱼见筑
© 章勇 / 章鱼见筑
最巧妙的一处,是儿童区走道尽端的竖向窄窗,它别无他物,只“借”来东邻院落的一角绿荫,成为走廊尽头永恒的、充满生机的端景。这些窗,是“借景”艺术的当代演绎。它们不仅将风景引入,更通过精心的构图,赋予寻常景物以画的意蕴。同时,建筑通透的界面也让内部生活的场景隐约透出,与庭院、树木形成一种“看与被看”的互动,建筑本身也成为了环境中的一景。
© 章勇 / 章鱼见筑
© 章勇 / 章鱼见筑
© 章勇 / 章鱼见筑
05
结语:尊重、流动与栖居
这座红砖宅院,最终讲述的是一个关于“尊重”的故事。它尊重场地的限制,化限制为清晰的形体逻辑;它尊重既有的生命(场地里的香樟),让树木成为设计的灵感;它尊重家庭生活的本质,用流动的空间促进亲情的联结;它尊重材料的本性,让红砖的温暖与厚重沉淀出时间的质感;它更尊重居住者的心灵,用光、景与空间序列,营造出一处可游、可望、可居的诗意栖所。它没有惊世骇俗的形式,却试图在平凡的方寸之间,通过对路径、光线、视野和材料这些基本元素的精心经营,重拾建筑的朴素美德与空间的情感力量。在这里,路斯的“克制与满足”、柯布西耶的动态体验与东方的观游智慧,不再是被引用的理论,而是化为了砖、空间、光影与生活在此场所的人之间,一段柔和而动人的对话。
© 章勇 / 章鱼见筑
© 章勇 / 章鱼见筑
© 章勇 / 章鱼见筑
总平面图 © 以靠建筑
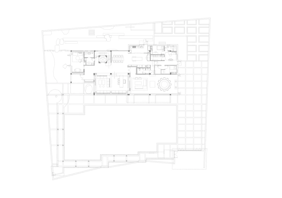
一层平面图 © 以靠建筑
二层平面图 © 以靠建筑
三层平面图 © 以靠建筑
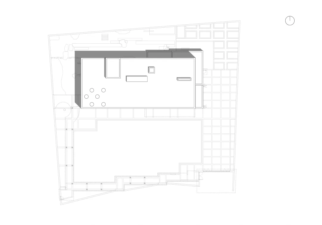
屋顶层平面图 © 以靠建筑
建筑事务所:以靠建筑 Leeko Architects
项目地点:长沙市,湖南省,中国
设计时间:2021 - 2023
建设时间:2023 - 2025
项目面积:1100 平方米
总设计师:李以靠 / 以靠建筑 Leeko Architects
建筑设计团队:李以靠、林劲超、吴雯君、苏雨茜、杨滨瑞、陈自立、张渠 / 以靠建筑 Leeko Architects
室内设计团队:李以靠、陈韵竹、张幸宾、刘洁秋、陈佳、潘昊伽、李汶翰 / 以靠建筑 Leeko Architects
景观设计团队:李以靠、郑思杰、潘昊伽、周凌煊 / 以靠建筑 Leeko Architects
业主:陈先生
摄影:章勇 / 章鱼见筑
*本文内容来自建筑事务所
标题及版式由 ArchDaily 整理
转载与任何形式的引用请联系设计团队
End
欢迎在评论区留下你的不同见解和疑问哦,小编都会收录然后生成新的干货内容哦~


因为公众号平台更改了推送规则,如果不想错过内容,记得读完点一下“在看”,这样每次新文章推送才会第一时间出现在你的订阅列表里。点“在看”支持我们吧!
