湖南
长沙
常德
张家界
当前位置:
首页
>
长沙
>长沙绿城金泓·文澜樾华研究报告
长沙绿城金泓·文澜樾华研究报告
2026-03-23 12:27:29
长沙绿城金泓·文澜樾华研究报告
小编下面从5个方面剖析此楼盘,分析观点维持
客观,中立,第三方
。
1、缘起
在2025年的土拍中经过50轮竞价,长沙市029地块最终由园康&信宇以溢价率约49%联合摘得,成交楼面价 11156元/㎡,
拿地后,开发商引入绿城进行操盘。
项目总建筑面积约6.34万平方米,计容建筑面积约4.91万平方米,其中住宅建筑面积约4.62万平方米。规划建设
5栋住宅楼(包含1栋回迁房)
。
能够竞拍50轮,在长沙已属少见,可见各大开发商对该地块的青睐。
这是金泓在长沙的
首发作品,至于“疗效”咋样,大家可以拭目以待。依小编看来,其实是否挂一个好牌子也就这样,打铁还得自身硬。
该地块有一栋回迁房,在这个区位也能理解,只是纯粹性稍差。
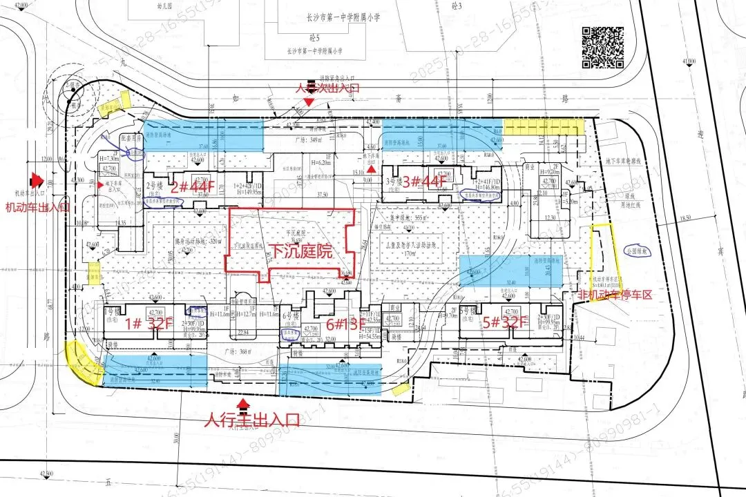
2、总图规划
图中楼栋间距标注均取整
总图分析:
分为前后两排,间距30米左右,没有大型的中央园区。
6栋为小高层,是项目拿地要求中需建设的回迁房。从这个凹凹凸凸的形状来看,房型好不到哪去,品质一般。
地块南临城市主动脉
五一大道
,东临
迎宾路
,这两条路在高峰期都非常繁忙,
南侧和东侧的楼栋(尤其是低楼层)将直面
交通噪音和灰尘
。
部分楼栋有架空,但是尺度都不大,能承载的生活主题有限。
1
#与6
#之间是人行入户大堂
,由于两栋间距只有23米左右,所以在大门的雨棚造型上进行了处理。飘檐部分将两栋楼进行包裹,横向视觉上是会好不少。但是跟原生的宽敞间距还是不能比。
消防扑救面大多做在小区外围,这一点提出表扬,整个中央园区会比较完整。5
#并不是开发商不想做到南侧
,只是红线的范围不允许,地块受限所致。
人行主出入口与车库出入口完全分离,这点处理的也比较好。
3、指标分析
小区分布4栋高层,1栋小高层,主要经济技术指标如下:
地块容积率为3.43,
绿地率28%,建筑密度40%。位于市中心还是可以理解,但是相比新区地块还是有差距的。
住宅地库车位配比1:0.84。这车位配比也是蛮低,这个价位,谁家里不得有个两辆车,后面停车难也无法避免。
小区有人防地库,可以关注下地下室人防门的设置点位,局部位置可能会有高门槛。
小区大于150平方米的户型占比25%,开发商还是想依托区位优势,快速回笼资金,并不会做的很高端。
4、户型
128平方米:
优点:全明电梯厅。
大横厅,可满足多种生活布局。
缺点:
房间的进深太长,空间的利用率不够好,简单来说,即使扁平一点,面积再小点也跟该户型的体验差不多。
公卫外侧为家政间,不直接对外。
动静不分区。
143平方米:
优点:
主卧有独立的衣帽间。
动静分区,不交杂。
公卫直接对外。
餐厅区域比较独立。
缺点:
横厅面积相对较小。
玄关处的老人房对客厅开门,在一定程度上破坏了客厅的完整性。
170平方米:
优点:
厨房带岛台,对喜欢烹饪的家庭来说是不小的诱惑。
有功能比较完整且独立的家政间。
有功能完善且各分区面积都比较合适的主卧套房。
缺点:
餐厅区域不够独立。
226平方米:布局与170差不多,做了个复式。
从小编的角度来看,高层里面没必要去做复式,除非你愿意为这个小房子再装个电梯。对于这类华而不实的户型,小编一概不推荐。
前三个户型来看,基本符合品质与面积正相关。如果预算有限,面积最小的户型性价比就很好了。
从图面来看,剪力墙与柱子位置并不正相对,可以在实体样板间注意下粱位是否影响你后期装修。
5、总结
这块地,区位上比较稀缺,总共也就几百套房子,喜欢这里的客户基本会自我说服自己。不符合自己需求的,也不会来看。
购买建议:在不同时段(特别是晚高峰)去项目周边实地感受一下五一大道的车流噪音,判断自己的接受度。
如果预算允许,尽量选择后排楼栋。
地面空间有限,立体园区的高品质兑现就显得尤为重要。
本文来自网友投稿或网络内容,如有侵犯您的权益请联系我们删除,联系邮箱:wyl860211@qq.com 。
禅宗语录155:长沙景岑禅师——沙门眼
给我大湖南长沙人,也是衡阳人颜燕清打Call
最新文章
禅宗语录155:长沙景岑禅师——沙门眼
长沙1966年茅台酒【全品相收】同步收拉塔希红酒、奔富707红酒,无论品相均可回收,对接老酒收藏交易中心,就近上门
长沙硕士留学机构十强有哪些?揭秘稳定可靠的留学保障
长沙必看高品质书包房
长沙麻将258
把关于“长沙”的浪漫,写进春天里
湖南长沙:“法语课培训机构拒退费,态度恶劣”,彭毅律师支招维权
蔡依林问长沙歌迷是不是都很晚睡觉
《2026暑招策划班》长沙课程介绍
湘野旅行 | 3.26-4.01长沙周边及国内近期热门路线推荐(活动定期更新)
热门文章
长沙芙蓉区回收茅台酒老酒今日行情价格一览表,茅台酒陈年老酒回收...15年30年50年茅台酒回收多少钱一瓶,正规公司、现金结算
长沙市回收1981年茅台酒回收年份茅台酒 剑南春 海参 燕窝 虫草 汾酒 拉菲红酒 欢迎来电-各区均可上门回收铁盖、珍品、飞天、五星茅台酒
长沙雨花石区回收53度茅台酒价格回收年份茅台酒 剑南春 海参 燕窝 虫草 汾酒 拉菲红酒 欢迎来电
被低估的长沙:网红外衣下的制造业王者
湖南长沙市周南中学2026届高三下学期仿真演练数学卷(一)/山东省济钢高级中学2026学年高三下学期3月学情检测数学试题
【长沙/线上+4月21-22日】企业会计准则新政:CAS30准则修订与难点解析(线下+线上)
落实“企业服务年”行动 长沙送出数字经济领域惠企“政策大礼包”
长沙双职工家庭周末可以带娃做多少事?(10)
专属福利!长沙联通“崇军卡”正式上线!
【长沙招聘】长沙市金秋方舟高级中学2026年春季教师招聘公告
随机文章
10个月宝宝每天需要喝多少奶粉?
长沙市专业转运病人服务:紧急转诊‖跨省护送‖接送病人出院‖长途转院电话预约
长沙某医院项目根据中标清单与市场价格进行利润分析
在长沙,如果你出身普通,没有家庭托举,醒悟晚,没人指导,生存路子全靠自己摸爬滚打,那踏入社会后,首先应考虑不是挣钱,而是疯狂补课
长沙ktv娱乐指导
湖南长沙恰同学少年广场上,那位来自山东菏泽的摄影师
长沙一女骑手闯禁、多次闯红灯,还发视频挑衅交警,警方迅速锁定身份,已传唤到案接受处罚
湖南、长沙、韶山、张家界、凤凰古城6日游
湖南长沙人文“黑色经典,茶颜家族”的特色
2026年3月23日湖南长沙鸡蛋实际成交价
娄底凭什么成为全国最吃香城市?长沙、邵阳、怀化都比不上
基本
文件
流程
错误
SQL
调试
请求信息 : 2026-03-27 19:07:24 HTTP/2.0 GET : https://e.460.net.cn/a/495617.html
运行时间 : 0.227661s [ 吞吐率:4.39req/s ] 内存消耗:4,454.97kb 文件加载:140
缓存信息 : 0 reads,0 writes
会话信息 : SESSION_ID=c407dbd4cb63764a1df3fd04a2c99f93
/yingpanguazai/ssd/ssd1/www/e.460.net.cn/public/index.php ( 0.79 KB )
/yingpanguazai/ssd/ssd1/www/e.460.net.cn/vendor/autoload.php ( 0.17 KB )
/yingpanguazai/ssd/ssd1/www/e.460.net.cn/vendor/composer/autoload_real.php ( 2.49 KB )
/yingpanguazai/ssd/ssd1/www/e.460.net.cn/vendor/composer/platform_check.php ( 0.90 KB )
/yingpanguazai/ssd/ssd1/www/e.460.net.cn/vendor/composer/ClassLoader.php ( 14.03 KB )
/yingpanguazai/ssd/ssd1/www/e.460.net.cn/vendor/composer/autoload_static.php ( 4.90 KB )
/yingpanguazai/ssd/ssd1/www/e.460.net.cn/vendor/topthink/think-helper/src/helper.php ( 8.34 KB )
/yingpanguazai/ssd/ssd1/www/e.460.net.cn/vendor/topthink/think-validate/src/helper.php ( 2.19 KB )
/yingpanguazai/ssd/ssd1/www/e.460.net.cn/vendor/topthink/think-orm/src/helper.php ( 1.47 KB )
/yingpanguazai/ssd/ssd1/www/e.460.net.cn/vendor/topthink/think-orm/stubs/load_stubs.php ( 0.16 KB )
/yingpanguazai/ssd/ssd1/www/e.460.net.cn/vendor/topthink/framework/src/think/Exception.php ( 1.69 KB )
/yingpanguazai/ssd/ssd1/www/e.460.net.cn/vendor/topthink/think-container/src/Facade.php ( 2.71 KB )
/yingpanguazai/ssd/ssd1/www/e.460.net.cn/vendor/symfony/deprecation-contracts/function.php ( 0.99 KB )
/yingpanguazai/ssd/ssd1/www/e.460.net.cn/vendor/symfony/polyfill-mbstring/bootstrap.php ( 8.26 KB )
/yingpanguazai/ssd/ssd1/www/e.460.net.cn/vendor/symfony/polyfill-mbstring/bootstrap80.php ( 9.78 KB )
/yingpanguazai/ssd/ssd1/www/e.460.net.cn/vendor/symfony/var-dumper/Resources/functions/dump.php ( 1.49 KB )
/yingpanguazai/ssd/ssd1/www/e.460.net.cn/vendor/topthink/think-dumper/src/helper.php ( 0.18 KB )
/yingpanguazai/ssd/ssd1/www/e.460.net.cn/vendor/symfony/var-dumper/VarDumper.php ( 4.30 KB )
/yingpanguazai/ssd/ssd1/www/e.460.net.cn/vendor/topthink/framework/src/think/App.php ( 15.30 KB )
/yingpanguazai/ssd/ssd1/www/e.460.net.cn/vendor/topthink/think-container/src/Container.php ( 15.76 KB )
/yingpanguazai/ssd/ssd1/www/e.460.net.cn/vendor/psr/container/src/ContainerInterface.php ( 1.02 KB )
/yingpanguazai/ssd/ssd1/www/e.460.net.cn/app/provider.php ( 0.19 KB )
/yingpanguazai/ssd/ssd1/www/e.460.net.cn/vendor/topthink/framework/src/think/Http.php ( 6.04 KB )
/yingpanguazai/ssd/ssd1/www/e.460.net.cn/vendor/topthink/think-helper/src/helper/Str.php ( 7.29 KB )
/yingpanguazai/ssd/ssd1/www/e.460.net.cn/vendor/topthink/framework/src/think/Env.php ( 4.68 KB )
/yingpanguazai/ssd/ssd1/www/e.460.net.cn/app/common.php ( 0.03 KB )
/yingpanguazai/ssd/ssd1/www/e.460.net.cn/vendor/topthink/framework/src/helper.php ( 18.78 KB )
/yingpanguazai/ssd/ssd1/www/e.460.net.cn/vendor/topthink/framework/src/think/Config.php ( 5.54 KB )
/yingpanguazai/ssd/ssd1/www/e.460.net.cn/config/app.php ( 0.95 KB )
/yingpanguazai/ssd/ssd1/www/e.460.net.cn/config/cache.php ( 0.78 KB )
/yingpanguazai/ssd/ssd1/www/e.460.net.cn/config/console.php ( 0.23 KB )
/yingpanguazai/ssd/ssd1/www/e.460.net.cn/config/cookie.php ( 0.56 KB )
/yingpanguazai/ssd/ssd1/www/e.460.net.cn/config/database.php ( 2.47 KB )
/yingpanguazai/ssd/ssd1/www/e.460.net.cn/vendor/topthink/framework/src/think/facade/Env.php ( 1.67 KB )
/yingpanguazai/ssd/ssd1/www/e.460.net.cn/config/filesystem.php ( 0.61 KB )
/yingpanguazai/ssd/ssd1/www/e.460.net.cn/config/lang.php ( 0.91 KB )
/yingpanguazai/ssd/ssd1/www/e.460.net.cn/config/log.php ( 1.35 KB )
/yingpanguazai/ssd/ssd1/www/e.460.net.cn/config/middleware.php ( 0.19 KB )
/yingpanguazai/ssd/ssd1/www/e.460.net.cn/config/route.php ( 1.89 KB )
/yingpanguazai/ssd/ssd1/www/e.460.net.cn/config/session.php ( 0.57 KB )
/yingpanguazai/ssd/ssd1/www/e.460.net.cn/config/trace.php ( 0.34 KB )
/yingpanguazai/ssd/ssd1/www/e.460.net.cn/config/view.php ( 0.82 KB )
/yingpanguazai/ssd/ssd1/www/e.460.net.cn/app/event.php ( 0.25 KB )
/yingpanguazai/ssd/ssd1/www/e.460.net.cn/vendor/topthink/framework/src/think/Event.php ( 7.67 KB )
/yingpanguazai/ssd/ssd1/www/e.460.net.cn/app/service.php ( 0.13 KB )
/yingpanguazai/ssd/ssd1/www/e.460.net.cn/app/AppService.php ( 0.26 KB )
/yingpanguazai/ssd/ssd1/www/e.460.net.cn/vendor/topthink/framework/src/think/Service.php ( 1.64 KB )
/yingpanguazai/ssd/ssd1/www/e.460.net.cn/vendor/topthink/framework/src/think/Lang.php ( 7.35 KB )
/yingpanguazai/ssd/ssd1/www/e.460.net.cn/vendor/topthink/framework/src/lang/zh-cn.php ( 13.70 KB )
/yingpanguazai/ssd/ssd1/www/e.460.net.cn/vendor/topthink/framework/src/think/initializer/Error.php ( 3.31 KB )
/yingpanguazai/ssd/ssd1/www/e.460.net.cn/vendor/topthink/framework/src/think/initializer/RegisterService.php ( 1.33 KB )
/yingpanguazai/ssd/ssd1/www/e.460.net.cn/vendor/services.php ( 0.14 KB )
/yingpanguazai/ssd/ssd1/www/e.460.net.cn/vendor/topthink/framework/src/think/service/PaginatorService.php ( 1.52 KB )
/yingpanguazai/ssd/ssd1/www/e.460.net.cn/vendor/topthink/framework/src/think/service/ValidateService.php ( 0.99 KB )
/yingpanguazai/ssd/ssd1/www/e.460.net.cn/vendor/topthink/framework/src/think/service/ModelService.php ( 2.04 KB )
/yingpanguazai/ssd/ssd1/www/e.460.net.cn/vendor/topthink/think-trace/src/Service.php ( 0.77 KB )
/yingpanguazai/ssd/ssd1/www/e.460.net.cn/vendor/topthink/framework/src/think/Middleware.php ( 6.72 KB )
/yingpanguazai/ssd/ssd1/www/e.460.net.cn/vendor/topthink/framework/src/think/initializer/BootService.php ( 0.77 KB )
/yingpanguazai/ssd/ssd1/www/e.460.net.cn/vendor/topthink/think-orm/src/Paginator.php ( 11.86 KB )
/yingpanguazai/ssd/ssd1/www/e.460.net.cn/vendor/topthink/think-validate/src/Validate.php ( 63.20 KB )
/yingpanguazai/ssd/ssd1/www/e.460.net.cn/vendor/topthink/think-orm/src/Model.php ( 23.55 KB )
/yingpanguazai/ssd/ssd1/www/e.460.net.cn/vendor/topthink/think-orm/src/model/concern/Attribute.php ( 21.05 KB )
/yingpanguazai/ssd/ssd1/www/e.460.net.cn/vendor/topthink/think-orm/src/model/concern/AutoWriteData.php ( 4.21 KB )
/yingpanguazai/ssd/ssd1/www/e.460.net.cn/vendor/topthink/think-orm/src/model/concern/Conversion.php ( 6.44 KB )
/yingpanguazai/ssd/ssd1/www/e.460.net.cn/vendor/topthink/think-orm/src/model/concern/DbConnect.php ( 5.16 KB )
/yingpanguazai/ssd/ssd1/www/e.460.net.cn/vendor/topthink/think-orm/src/model/concern/ModelEvent.php ( 2.33 KB )
/yingpanguazai/ssd/ssd1/www/e.460.net.cn/vendor/topthink/think-orm/src/model/concern/RelationShip.php ( 28.29 KB )
/yingpanguazai/ssd/ssd1/www/e.460.net.cn/vendor/topthink/think-helper/src/contract/Arrayable.php ( 0.09 KB )
/yingpanguazai/ssd/ssd1/www/e.460.net.cn/vendor/topthink/think-helper/src/contract/Jsonable.php ( 0.13 KB )
/yingpanguazai/ssd/ssd1/www/e.460.net.cn/vendor/topthink/think-orm/src/model/contract/Modelable.php ( 0.09 KB )
/yingpanguazai/ssd/ssd1/www/e.460.net.cn/vendor/topthink/framework/src/think/Db.php ( 2.88 KB )
/yingpanguazai/ssd/ssd1/www/e.460.net.cn/vendor/topthink/think-orm/src/DbManager.php ( 8.52 KB )
/yingpanguazai/ssd/ssd1/www/e.460.net.cn/vendor/topthink/framework/src/think/Log.php ( 6.28 KB )
/yingpanguazai/ssd/ssd1/www/e.460.net.cn/vendor/topthink/framework/src/think/Manager.php ( 3.92 KB )
/yingpanguazai/ssd/ssd1/www/e.460.net.cn/vendor/psr/log/src/LoggerTrait.php ( 2.69 KB )
/yingpanguazai/ssd/ssd1/www/e.460.net.cn/vendor/psr/log/src/LoggerInterface.php ( 2.71 KB )
/yingpanguazai/ssd/ssd1/www/e.460.net.cn/vendor/topthink/framework/src/think/Cache.php ( 4.92 KB )
/yingpanguazai/ssd/ssd1/www/e.460.net.cn/vendor/psr/simple-cache/src/CacheInterface.php ( 4.71 KB )
/yingpanguazai/ssd/ssd1/www/e.460.net.cn/vendor/topthink/think-helper/src/helper/Arr.php ( 16.63 KB )
/yingpanguazai/ssd/ssd1/www/e.460.net.cn/vendor/topthink/framework/src/think/cache/driver/File.php ( 7.84 KB )
/yingpanguazai/ssd/ssd1/www/e.460.net.cn/vendor/topthink/framework/src/think/cache/Driver.php ( 9.03 KB )
/yingpanguazai/ssd/ssd1/www/e.460.net.cn/vendor/topthink/framework/src/think/contract/CacheHandlerInterface.php ( 1.99 KB )
/yingpanguazai/ssd/ssd1/www/e.460.net.cn/app/Request.php ( 0.09 KB )
/yingpanguazai/ssd/ssd1/www/e.460.net.cn/vendor/topthink/framework/src/think/Request.php ( 55.78 KB )
/yingpanguazai/ssd/ssd1/www/e.460.net.cn/app/middleware.php ( 0.25 KB )
/yingpanguazai/ssd/ssd1/www/e.460.net.cn/vendor/topthink/framework/src/think/Pipeline.php ( 2.61 KB )
/yingpanguazai/ssd/ssd1/www/e.460.net.cn/vendor/topthink/think-trace/src/TraceDebug.php ( 3.40 KB )
/yingpanguazai/ssd/ssd1/www/e.460.net.cn/vendor/topthink/framework/src/think/middleware/SessionInit.php ( 1.94 KB )
/yingpanguazai/ssd/ssd1/www/e.460.net.cn/vendor/topthink/framework/src/think/Session.php ( 1.80 KB )
/yingpanguazai/ssd/ssd1/www/e.460.net.cn/vendor/topthink/framework/src/think/session/driver/File.php ( 6.27 KB )
/yingpanguazai/ssd/ssd1/www/e.460.net.cn/vendor/topthink/framework/src/think/contract/SessionHandlerInterface.php ( 0.87 KB )
/yingpanguazai/ssd/ssd1/www/e.460.net.cn/vendor/topthink/framework/src/think/session/Store.php ( 7.12 KB )
/yingpanguazai/ssd/ssd1/www/e.460.net.cn/vendor/topthink/framework/src/think/Route.php ( 23.73 KB )
/yingpanguazai/ssd/ssd1/www/e.460.net.cn/vendor/topthink/framework/src/think/route/RuleName.php ( 5.75 KB )
/yingpanguazai/ssd/ssd1/www/e.460.net.cn/vendor/topthink/framework/src/think/route/Domain.php ( 2.53 KB )
/yingpanguazai/ssd/ssd1/www/e.460.net.cn/vendor/topthink/framework/src/think/route/RuleGroup.php ( 22.43 KB )
/yingpanguazai/ssd/ssd1/www/e.460.net.cn/vendor/topthink/framework/src/think/route/Rule.php ( 26.95 KB )
/yingpanguazai/ssd/ssd1/www/e.460.net.cn/vendor/topthink/framework/src/think/route/RuleItem.php ( 9.78 KB )
/yingpanguazai/ssd/ssd1/www/e.460.net.cn/route/app.php ( 1.72 KB )
/yingpanguazai/ssd/ssd1/www/e.460.net.cn/vendor/topthink/framework/src/think/facade/Route.php ( 4.70 KB )
/yingpanguazai/ssd/ssd1/www/e.460.net.cn/vendor/topthink/framework/src/think/route/dispatch/Controller.php ( 4.74 KB )
/yingpanguazai/ssd/ssd1/www/e.460.net.cn/vendor/topthink/framework/src/think/route/Dispatch.php ( 10.44 KB )
/yingpanguazai/ssd/ssd1/www/e.460.net.cn/app/controller/Index.php ( 4.81 KB )
/yingpanguazai/ssd/ssd1/www/e.460.net.cn/app/BaseController.php ( 2.05 KB )
/yingpanguazai/ssd/ssd1/www/e.460.net.cn/vendor/topthink/think-orm/src/facade/Db.php ( 0.93 KB )
/yingpanguazai/ssd/ssd1/www/e.460.net.cn/vendor/topthink/think-orm/src/db/connector/Mysql.php ( 5.44 KB )
/yingpanguazai/ssd/ssd1/www/e.460.net.cn/vendor/topthink/think-orm/src/db/PDOConnection.php ( 52.47 KB )
/yingpanguazai/ssd/ssd1/www/e.460.net.cn/vendor/topthink/think-orm/src/db/Connection.php ( 8.39 KB )
/yingpanguazai/ssd/ssd1/www/e.460.net.cn/vendor/topthink/think-orm/src/db/ConnectionInterface.php ( 4.57 KB )
/yingpanguazai/ssd/ssd1/www/e.460.net.cn/vendor/topthink/think-orm/src/db/builder/Mysql.php ( 16.58 KB )
/yingpanguazai/ssd/ssd1/www/e.460.net.cn/vendor/topthink/think-orm/src/db/Builder.php ( 24.06 KB )
/yingpanguazai/ssd/ssd1/www/e.460.net.cn/vendor/topthink/think-orm/src/db/BaseBuilder.php ( 27.50 KB )
/yingpanguazai/ssd/ssd1/www/e.460.net.cn/vendor/topthink/think-orm/src/db/Query.php ( 15.71 KB )
/yingpanguazai/ssd/ssd1/www/e.460.net.cn/vendor/topthink/think-orm/src/db/BaseQuery.php ( 45.13 KB )
/yingpanguazai/ssd/ssd1/www/e.460.net.cn/vendor/topthink/think-orm/src/db/concern/TimeFieldQuery.php ( 7.43 KB )
/yingpanguazai/ssd/ssd1/www/e.460.net.cn/vendor/topthink/think-orm/src/db/concern/AggregateQuery.php ( 3.26 KB )
/yingpanguazai/ssd/ssd1/www/e.460.net.cn/vendor/topthink/think-orm/src/db/concern/ModelRelationQuery.php ( 20.07 KB )
/yingpanguazai/ssd/ssd1/www/e.460.net.cn/vendor/topthink/think-orm/src/db/concern/ParamsBind.php ( 3.66 KB )
/yingpanguazai/ssd/ssd1/www/e.460.net.cn/vendor/topthink/think-orm/src/db/concern/ResultOperation.php ( 7.01 KB )
/yingpanguazai/ssd/ssd1/www/e.460.net.cn/vendor/topthink/think-orm/src/db/concern/WhereQuery.php ( 19.37 KB )
/yingpanguazai/ssd/ssd1/www/e.460.net.cn/vendor/topthink/think-orm/src/db/concern/JoinAndViewQuery.php ( 7.11 KB )
/yingpanguazai/ssd/ssd1/www/e.460.net.cn/vendor/topthink/think-orm/src/db/concern/TableFieldInfo.php ( 2.63 KB )
/yingpanguazai/ssd/ssd1/www/e.460.net.cn/vendor/topthink/think-orm/src/db/concern/Transaction.php ( 2.77 KB )
/yingpanguazai/ssd/ssd1/www/e.460.net.cn/vendor/topthink/framework/src/think/log/driver/File.php ( 5.96 KB )
/yingpanguazai/ssd/ssd1/www/e.460.net.cn/vendor/topthink/framework/src/think/contract/LogHandlerInterface.php ( 0.86 KB )
/yingpanguazai/ssd/ssd1/www/e.460.net.cn/vendor/topthink/framework/src/think/log/Channel.php ( 3.89 KB )
/yingpanguazai/ssd/ssd1/www/e.460.net.cn/vendor/topthink/framework/src/think/event/LogRecord.php ( 1.02 KB )
/yingpanguazai/ssd/ssd1/www/e.460.net.cn/vendor/topthink/think-helper/src/Collection.php ( 16.47 KB )
/yingpanguazai/ssd/ssd1/www/e.460.net.cn/vendor/topthink/framework/src/think/facade/View.php ( 1.70 KB )
/yingpanguazai/ssd/ssd1/www/e.460.net.cn/vendor/topthink/framework/src/think/View.php ( 4.39 KB )
/yingpanguazai/ssd/ssd1/www/e.460.net.cn/vendor/topthink/framework/src/think/Response.php ( 8.81 KB )
/yingpanguazai/ssd/ssd1/www/e.460.net.cn/vendor/topthink/framework/src/think/response/View.php ( 3.29 KB )
/yingpanguazai/ssd/ssd1/www/e.460.net.cn/vendor/topthink/framework/src/think/Cookie.php ( 6.06 KB )
/yingpanguazai/ssd/ssd1/www/e.460.net.cn/vendor/topthink/think-view/src/Think.php ( 8.38 KB )
/yingpanguazai/ssd/ssd1/www/e.460.net.cn/vendor/topthink/framework/src/think/contract/TemplateHandlerInterface.php ( 1.60 KB )
/yingpanguazai/ssd/ssd1/www/e.460.net.cn/vendor/topthink/think-template/src/Template.php ( 46.61 KB )
/yingpanguazai/ssd/ssd1/www/e.460.net.cn/vendor/topthink/think-template/src/template/driver/File.php ( 2.41 KB )
/yingpanguazai/ssd/ssd1/www/e.460.net.cn/vendor/topthink/think-template/src/template/contract/DriverInterface.php ( 0.86 KB )
/yingpanguazai/ssd/ssd1/www/e.460.net.cn/runtime/temp/58d7cf2308c7c7dcdfb7495b4c084c05.php ( 11.98 KB )
/yingpanguazai/ssd/ssd1/www/e.460.net.cn/vendor/topthink/think-trace/src/Html.php ( 4.42 KB )
CONNECT:[ UseTime:0.001153s ] mysql:host=127.0.0.1;port=3306;dbname=e460;charset=utf8mb4
SHOW FULL COLUMNS FROM `fenlei` [ RunTime:0.001349s ]
SELECT * FROM `fenlei` WHERE `fid` = 0 [ RunTime:0.000713s ]
SELECT * FROM `fenlei` WHERE `fid` = 63 [ RunTime:0.000613s ]
SHOW FULL COLUMNS FROM `set` [ RunTime:0.001566s ]
SELECT * FROM `set` [ RunTime:0.003488s ]
SHOW FULL COLUMNS FROM `article` [ RunTime:0.001857s ]
SELECT * FROM `article` WHERE `id` = 495617 LIMIT 1 [ RunTime:0.007206s ]
UPDATE `article` SET `lasttime` = 1774609644 WHERE `id` = 495617 [ RunTime:0.013780s ]
SELECT * FROM `fenlei` WHERE `id` = 64 LIMIT 1 [ RunTime:0.000716s ]
SELECT * FROM `article` WHERE `id` < 495617 ORDER BY `id` DESC LIMIT 1 [ RunTime:0.001251s ]
SELECT * FROM `article` WHERE `id` > 495617 ORDER BY `id` ASC LIMIT 1 [ RunTime:0.001075s ]
SELECT * FROM `article` WHERE `id` < 495617 ORDER BY `id` DESC LIMIT 10 [ RunTime:0.001855s ]
SELECT * FROM `article` WHERE `id` < 495617 ORDER BY `id` DESC LIMIT 10,10 [ RunTime:0.003553s ]
SELECT * FROM `article` WHERE `id` < 495617 ORDER BY `id` DESC LIMIT 20,10 [ RunTime:0.003606s ]
0.231546s