长沙望月公园(王陵公园),有一座西汉长沙王陵。西汉初期封藩于长沙的第一代长沙王吴芮是唯一一个被刘邦保留下来异姓王,他为什么能保持王脉的延续?
一、汉长沙王世系脉络
长沙国的历史脉络,从乾隆年间的《长沙府志》第一卷中的《封建世谱》可知,从西汉第一代长沙王吴芮开始,西汉时期,长沙国共传十三代长沙王,其中吴姓一脉五代、刘姓一脉八代。
1.1 第一代长沙王 吴芮
先从第一代长沙王吴芮说起,吴芮是吴王夫差的后代,“举兵反秦,功绩卓著;项羽入咸阳,得封衡山王;汉朝建立,功封长沙王“,总结了他的一生功绩,“江西历史上第一位有文献记载的杰出人物、滕王阁的江西十大历史名人壁画中位居首位、刘邦剪除异姓王,唯吴芮独免”,反映了他的历史地位。
吴芮的一生,最为疑惑的是“刘邦在铲除异姓王的时候为什么唯独他可以善终,并传世五代?”答案我想就来自于刘邦自己的评价,"长沙王忠,其定著令",简言之,一个字“忠”。史学家分析,可能还有其他一些原因,第一,吴芮在位仅一年就去世,刘邦消灭的都是第一代异姓王,之后继位的吴臣属于第二代对大汉无危胁;第二,吴芮低调做人,让兵让领地给刘邦子女,消除戒心;第三,英布叛乱,吴芮告发,平定叛乱之中,吴臣以姻亲关系诱骗英布,将其擒杀,立下大功;第四,长沙国地处偏僻,威胁不大,保留长沙国,可以牵制南越,以下是西汉时期的八位异姓诸侯王的分封所在地。

1.2 西汉历代长沙王世袭关系
从公元前202年至公元8年,在长达210年的历史之中,长沙国经历了2个姓氏、共13位长沙王的统治。先是汉初的异姓“吴姓长沙王”,后是“刘姓长沙王”。
吴姓第一代王吴芮已经介绍,刘姓第一代王刘发也相当了的。刘发是汉景帝刘启第六子,属于意外中的皇子。传景帝酒后要临幸程姬,程姬正逢月事,命其侍女唐姬侍寝。景帝酒醉,以为是程姬,唐因此怀孕,生下长沙王刘发。但这个出身卑微的皇子并没有受到汉景帝的喜爱,从他所分封的长沙国就可以知道,当时的长沙属于蛮夷之地,面临来自南越的威胁。但正是这位不被待见的皇子,却成了东汉皇帝的直系祖先,他是光武帝刘秀与更始帝刘玄五世祖,历史往往就是这么有趣,“汉景帝妃子程姬的一次例假,延续了一个强大的王朝”。下表为历代长沙王在位时间及所处的西汉王朝:

二、西汉长沙国王陵墓群格局分布
西汉长沙王的墓葬形式及形制,从它所处时代、所在地区文化等背景来分析。长沙地处先秦楚文化核心区域,同时又受制于西汉帝陵的影响,是汉葬制与楚葬制融合交汇。从已经发掘的西汉长沙王陵来看,具备以园邑、陵园、陵寝、陪葬墓、外藏坑、黄肠题凑等汉葬制的轮廓,同时还融合墓道偶人、椁箱分室形制、内外髹漆套棺、笭床等楚葬俗为内核的极富特色的西汉长沙国陵墓制度。
长沙2010年前已经发现7座长沙王室汉墓(某代吴氏长沙王的王后“渔阳”墓、望月公园内及周边的象鼻嘴、狮子山、陡壁山、扇子山4座汉墓,以及风篷岭、风盘岭2座汉墓),近几年又陆续发现了16座西汉时期长沙王王室成员墓葬,这23座汉墓的分布基本上确定了西汉时期长沙王陵区的位置和范围,南北跨度约15公里,东西跨度约2公里(见下图:来自何旭红《汉代长沙国考研发现和研究》)。西汉长沙王传世13代,除了刘氏最后1位王被废不能入葬王陵区外,其余12位长沙王及其王室成员绝大部分葬在了湘江西岸的低矮丘陵地带。
基于“汉代诸侯王夫妇同茔异穴”的分布规律,王和王后的墓一定是在一块的,这个分布规律以及当前发现王陵的整体分布图及数量,同时结合已经发掘陵墓的出土文物,基本可以判定:吴氏长沙王和刘氏长沙王的陵区以岳麓大道为界区分,岳麓大道以南为吴氏长沙王及王室成员墓葬,主要分布在岳麓山一带,数量9个(五代吴姓长沙王)。岳麓大道以北,刘氏长沙王及王室成员墓葬主要分布在谷山一带,数量14个(9代刘姓长沙王,2废),数量也恰好对的上。另外,长沙考古研究说所长何旭红还发现一个有趣地理分布:“长沙有两条重要的河流:一条湘江,一条浏阳河。长沙王身份是诸侯王,他们的陵墓选择在湘江岸边。轪侯利苍的家族墓和爵秩大致与其相当的贵族的墓葬,主要在浏阳河边。身份更高的王的陵墓,占据了更好的地理位置。”
长沙国历代长沙王的陵区分布已经基本判定,而且吴姓和刘姓两脉的王陵的分布也已经确定,下一步就是如何确定每个陵区的归属问题。我引用了长沙市文物考古研究所《郑广| 汉代长沙王陵陵园初探》作为参考,给出如下初步的判断,具体判断方法是基于出土的文物、铭文、印章、黄肠题凑以及文物大概所处的年代等维度来判断分析,具体请参考文章分析,我不再赘述。
但特别要讲明的是郑广对望月公园中的象鼻山一号汉墓主人猜测为长沙国恭王吴右,而非目前公园中标注的长沙靖王吴著。因为长沙国王陵在古代典籍中几乎没有任何的记载,各代长沙王的陵址更是无法从文献中得知,相关资料多来源于考古工作者的田野考古成果,我们姑且尊重文物研究专家们的研究成果,不去较真其中的对错,目前在没有确切的考古证据证明的情况下,一切都有可能。
三、望月公园象鼻山一号汉墓探秘
在长沙如果提到王陵公园,很容易去到“汉王陵公园”位于望城区,那是刘姓长沙王陵遗址,我们下文介绍。而我们今天聊的是望月公园,曾经也叫“王陵公园”,只因“王陵”通“亡灵”,老百姓认为不吉利,改名为望月公园,两处位置约8公里。

望月公园并不大,步入公园一条林荫大道,左侧就是象鼻山,扇形山和狮子山,右边是铜盆湖,从帝/王陵的风水学上”两边有抱,后面有靠,前面有照,照中有泡”,两边有抱,表示左右两边都有山环抱,后面背靠山,前面有水,而望月公园正是“三山一水”的格局。
无心欣赏风景,一路直奔主题,步行约一百多米,看到“长沙国王陵墓群-象鼻山墓区”标志,旁边就是登山口,沿此处到山顶就是长沙王吴著的陵墓所在。
象鼻山不高,海拔仅67.7米,拾阶而上,很快就到达了山顶,登上山顶,远远看见一处被围栏围起的深坑,这里就是当年发现长沙王墓冢的地方。

因为此处的长沙王的王陵,只剩下一座深坑,并没有太多的观赏性。坑内放支架,不知是支撑还是标志原来黄肠题凑的模样,抑或是仅仅为了填充深坑,用于保护。
为了更直观的理解这座“深坑”,我搜寻了一些象鼻山当年考古发掘的文献及图片来还原王陵的当初的样子。
3.1 象鼻山一号墓的位置及周边墓区关系
象鼻山的陵墓于1978年发掘,其葬制为黄肠题凑,墓主人是长沙王无疑,从出土的陶器、漆木器、丝织品及玉器推测,可能是末代长沙王吴著。虽然与郑广的判断不同,但我们姑且按照这个判断来定义。象鼻山旁边有狮子山和扇形山两座,经过考古,都有可能是吴姓长沙王墓区。在距离象鼻山200米的徒壁山,1975年也发现西汉早期汉墓,有黄肠题凑,再结合出土“长沙后丞”封泥、鸟篆白文“曹(女巽)”玉印、小篆白文“妾(女巽)”玛瑙印章等物,判断身份是长沙王妃曹氏,因为距离象鼻山很近,结合西汉”王后同茔不同穴“的推测曹氏是应该末代长沙王吴著的王后。
其实我有两点疑问,一是吴著的夫人姓氏不清楚吗,如果没有任何记载,只能说明长沙国在当年西汉时期太不重要了。另外,在象鼻山旁边还有扇形山及狮子山两座可能的王(后)陵,而且狮子山距离徒壁山上更近,为什么没有可能扇形山的墓主人是吴著的夫人,而狮子山可能是另外一位长沙王,徒璧山的曹氏是狮子山长沙王的王妃呢。不过,从郑广的研究划分来看,这四座墓都属于同一王陵区,一切都以后发掘再来判定吧。

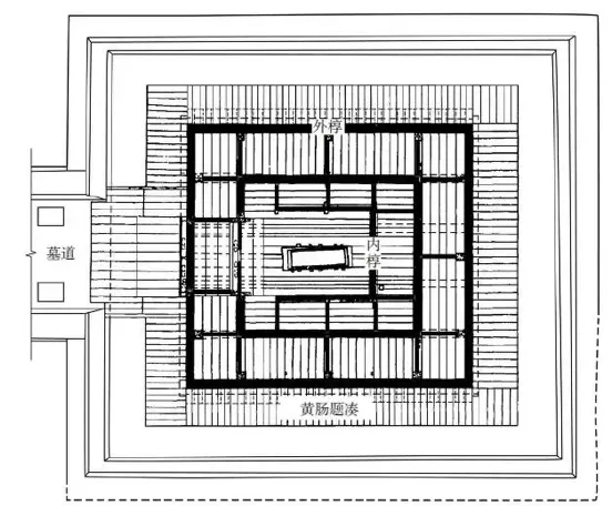
3.2象鼻山一号墓平面图
为了更加深刻的了解这个面前的深坑以前的模样,我从《西汉长沙国诸侯王陵墓制度研究》找到了平面图以及当年发掘的实物图片。象鼻山一号墓平面图如下:

黄肠题凑位于坑壁与外椁之间,紧贴外椁及通道墙板四周,与墓室壁间空隙填充夯打的黄砂土和砾石等。题凑以内的外椁、内椁、棺室形成两处回廊。外椁西墙正中开设双扇门,连接通道与前室。前室四面皆通,西接通道,东连内椁室,南北分别通向内、外椁之间的回廊,该回廊由立柱、隔板、门扉、横梁等将其隔互通且独立十二间小房间。由前室经内椁门通往内椁室,内椁墙板与棺室墙板间的空间为另一处回廊,除开设内椁门的西边外,其余三边被分隔为五处小空间。
下图看起来更加直观一些(仅作为参考,非长沙王实际墓制结构)

3.3象鼻山一号实景图
在了解了象鼻山一号墓的内部平面图之后,再来看眼前的这个深坑,是不是就有些感觉了。从上面的平面图,我们从墓道开始还原这个深坑的面貌。
我环绕深坑一周,找到了当年的墓道口,这里已经被上了锁,虽然不能进去,但也基本看到里面的样子。


可以想象,进入墓道口之后,就是下图的样子。
从后面看墓道口:

环墓坑一周,从四个方向再来看看这个墓坑:
(1)墓道口位置看

(2)从墓道口左侧看



(3)从墓道口右侧看
这个位置看,下面有一根树藤像不像一条巨蟒?

(4)从墓道的后侧看


3.4长沙王吴著其人
看了这么久的长沙王墓(深坑),我们有必要了解一下这位墓主人第五代吴姓长沙王吴著的生平。吴著我们可能了解不多,但大家一定知道著有《过秦论》的贾谊,他是吴著的太傅(老师),现在在长沙的太平街还有贾谊的故居。另外和吴著同时期的马王堆汉墓主人辛追夫人的儿子利豨。吴著是吴姓长沙王最后一代王,因为无子,吴姓长沙王国被废除。长沙国虽然只有45年,却是西汉异姓王中存在时间最长的封国,不得不说是一种奇迹。

四、望月公园扇形山及狮子山的情况
转完象鼻山王区,我又爬到了扇形山和狮子山顶,一方面想远眺一下象鼻山,另外,就是想看看扇形山和狮子山有没有什么王陵的痕迹。登上山顶,有些失望,完全没有任何王陵的踪迹,只能凭想象这下面应该沉睡着某位吴姓长沙王或后。二千多年过去了,在长沙这片土地上,他们曾经管辖的这片土地上已经日新月异,他们依然“活”在这片土地上。
扇形山顶,有一座螺旋亭

狮子山顶,有一个水池,据说这个水池就是之前的墓坑。
