4月13日,长沙自然资源和规划局甩出了一份批前公示,南湖新城又冒出一个新盘——“建发云启望江府”。就两栋楼,161户,一眼望到底。
但就是这个“一眼望到底”的袖珍盘,选址偏偏选在了长沙银行第二总部大楼的正隔壁——一座规划360米高的超级地标。
南湖新城金融外滩的牌桌上,绿城、中海、运达都已落子,建发这时候入局,手里到底握着什么筹码?凭两栋楼就敢来搅这潭深水?
金融外滩的“边角料”还是“宝藏地块”?
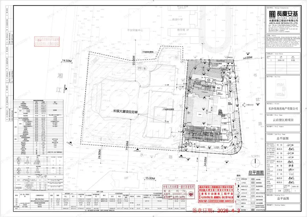
项目位于书院路与水厂路交汇处,保利国际广场北侧,临湘江,距4号线碧沙湖站约400米。
先画个圈——步行半径内有什么?北侧紧挨着青园南湖小学,西侧是正在建设的长沙银行第二总部(360米地标,总投资约27.5亿元)。
周边1公里内,平安财富中心、保利国际广场、汇景发展环球中心、五矿广场等地标楼宇一字排开。
教育方面,青园南湖小学是长沙老牌教育集团,确定性较高(具体学区划分以教育局最终文件为准)。
但Cc得说句实话——这个位置,有点像“地标旁边的小跟班”。
好的是能蹭到长沙银行总部带来的配套和地标溢价,不好的是……当你站在阳台上想望江的时候,大概率先看到的是隔壁长沙银行那栋360米的超高层背影。
批前公示里也坦诚——“江景视野会被遮挡”。
不过话说回来,南湖新城金融外滩一线江景的地块已经所剩无几。能在这个位置占个座,本身就已经是稀缺资源了。

底价成交的背后,藏着建发的精明账
2025年12月30日,长沙土拍收官之战,长沙市081号地块以底价成交,楼面价7501元/㎡,拿地方叫“厦门岩垚盛”。等一下,不是建发拿的地?
对,这就是有意思的地方。厦门岩垚盛(汇成世纪)是一家福建房企,在长沙算新面孔。但公开资料明确指出,它引入建发操盘开发,项目命名为“建发望江”。
这种“借壳拿地+品牌操盘”的模式,在长沙并不罕见。
地块体量极小——仅约14亩(约9183平方米),容积率3.0,限高150米,商住比5:95。说白了,就这么大点地,塞不下第三栋楼。
楼面价7501元/㎡,在南湖新城金融外滩是什么水平?对比一下——南侧运达碧沙湖项目楼面价8562元/㎡,比建发高出一千多;绿城凤起麓鸣、中海阅湘台拿地更早,成本结构不同。
这账一算,Cc就明白了:建发以相对低的楼面价入局金融外滩,楼面价优势约12%,而周边竞品售价普遍在2万-3万/㎡区间。底价成交意味着定价有腾挪空间,这就是它的安全垫。
总图与规划分析:两栋楼的“微操盘”逻辑
总图信息是这次批前公示的核心,Cc一条一条拆给你看。
数据速览:总建筑面积27550平方米,住宅户数161户,停车位167个,车位比1:1.04。
两栋住宅+底商,1#楼39层、2#楼32层,底下带约5%商业配比。
楼栋布局:地块呈南北走向,两栋楼大概率沿书院路方向错位排布。2#楼(32层)在前,1#楼(39层)在后,这样后排的高层还能“探头”望到江。
但由于西侧就是长沙银行360米地标,江景面基本被切断,只能从建筑缝隙里“借景”——这是规划上最明显的硬伤。
容积率3.0:在这个地段属于中等偏低,对比南湖新城其他江景项目普遍在3.5-4.0左右,建发望江的居住密度相对友好。
但因为地块太小,3.0的容积率还是压出了两栋高层——39层和32层,意味着垂直交通压力不小,早高峰等电梯会是个实打实的痛点。
车位比1:1.04:161户配167个车位,刚刚够用。Cc说句实话——金融外滩的住户,一家两辆车是常态,167个车位对于改善型项目来说略显紧张。
不过好在地块周边公共停车资源较丰富,一定程度上能缓解压力。
归家动线:地块紧邻书院路,主入口大概率开在水厂路或书院路侧。由于体量太小,基本没有条件做像样的中央景观轴,园林更多是“见缝插绿”。
社区配套会所等设施空间极为有限——这是小地块的天然劣势,没法回避。
户型面积段:150-200㎡户型共72户,90-150㎡户型共89户。
这个配比很有意思——改善和刚改几乎对半分,说明建发并不打算全部押注纯改善大平层,而是想用相对小的户型来“降维打击”,跟绿城、中海的全大平层路线错开竞争。
Cc手戳了户型图,大概率是185-140-128,仅供参考,不保真。
185户型大概率就是建发观云的178拉长版。
口碑复杂,交付力需要审慎看待
建发在长沙已经开发了多个项目——玖洲和玺、玖洲观澜、养云、观云、缦云等,涵盖刚改到改善全谱系。
先说好的:建发在长沙深耕多年,对本地市场理解到位,产品定位和营销节奏把控经验丰富。
好在楼面价7501元/㎡相对温和,开发商利润空间尚可,减配的动机比那些高价拿地的项目要小。
这是Cc判断其交付品质的一个重要参考维度。
南湖新城的“牌桌”上,建发坐哪?
建发望江不是一个人在战斗。看看同桌的牌友:
绿城和中海已经把金融外滩的天花板顶到了3万+,运达碧沙湖项目楼面价更高,定位大概率也是纯大平层。
建发望江楼面价7501元/㎡,如果用90-150㎡的户型打差异化的价格策略,理论上可以把总价门槛拉低到南湖新城改善盘的历史低位。
但问题在于——体量太小。161户意味着什么?没有规模效应,物业费单价必然偏高,邻里氛围也难成气候。
这是微型盘的原罪,没法用产品设计来弥补。
结语
针对150-200㎡的买家(72户)
你是这个项目最核心的目标客群。南湖新城金融外滩的核心地段+建发品牌+相对温和的拿地成本,产品力值得期待。
但必须接受两个硬伤——江景视野会被长沙银行总部遮挡,且微型社区的配套和邻里氛围先天不足。
建议等样板间开放后实地体验采光和视野,不要只看户型图就下定。如果你能接受“地段为王、牺牲江景”的取舍,这批房源值得重点关注。
针对90-150㎡的买家(89户)
你是建发打出“差异化竞争”的牌。
在这个遍地大平层的金融外滩,中小户型确实稀缺。但你得想清楚——你花的是金融外滩的地段溢价,住的是两栋高层里的刚改户型。
电梯等待时间、公摊比例、社区配套的缺乏,这些在小户型上会被放大。
如果预算紧张又想挤进南湖新城,可以考虑,但Cc建议同步对比周边二手房(如保利国际广场),看看是否能用更优的单价买到更大的空间和更好的视野。
需要日照与视野模拟,评论区回复建发。
来自【建筑师Cc】公众号的原创文章
买房十步曲:
【三大步】1选对板块+2选对楼盘+3选对户型
【三小步】4选对日照+5选对视野+6选对通风
【四不买】7噪音不买+8异味不买+9阴暗不买+10不利因素不买
往期文章:
《【金茂府3.0】方案猜想?》
《【招商序·二期】复制粘贴一期完事?》
《【保利下大垅】保利的“笨”办法,才是真良心?》
《绿城黄土塘丨长沙“第四朵”海棠花?》
《【润和融华府VS融华润和府】那就各退一步:润华融和府!》