长沙:顶级学区房!时隔2年重出江湖,新房居然比二手还便宜!
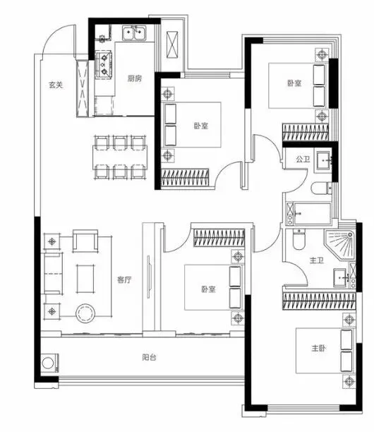
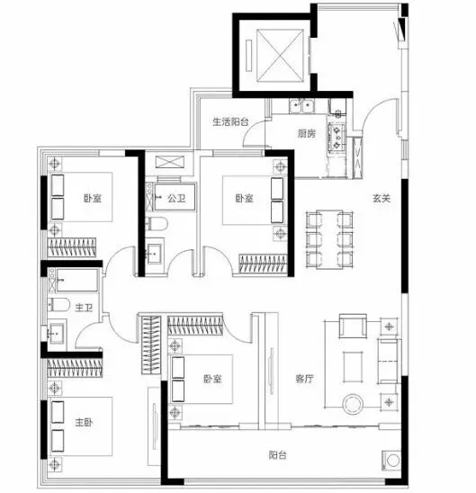
长沙又一个新楼盘吸引了所有人的眼球:江悦和鸣!自从2年前售罄后,二期最近终于开售了!具有唯一性:江悦和鸣配套入读:长郡外国语第一附属小学+长郡外国语。是所有学区房楼盘中,全城唯一配套小学、初中均为老校区的楼盘。是其他所有楼盘都比不了的优势。长郡外国语2025年的四大率26%,与青一并列全长沙第一。超越了湘郡培粹、超越了中雅培粹、也超越了长郡双语。且相比其他顶级初中,省府板块更具长远优势。先看下二手房价格,一期大四房是2种户型129平、142平,都为开发商精装。成交总价均在200万以上,交易活跃,作为顶级双学区,已经被市场认可。一期目前2种户型最低报价分别为205万、209万。一期是老规,得房只有83%左右,142平套内只有118平。以最低报价209万算,实际套内单价1.77万!二期新房预计1.6万均价,毛坯交付。大四房户型为117、118平。以118平为便,总价188.8万。但得房率有115%,实际套内135.7平。实际套内面积单价1.39万!二期2号栋有104、117、118三个面积,是下个月开盘,目前有额外优惠;3号栋139平暂未公布户型。此外还有139平,江景房,位于3号栋5楼以上可以看湘江。只是暂未定开售时间,预计还要2-3个月时间。最后再说一下长郡外国语学校,他有两个校区:老校区和新校区(南校区)。直读老校区的是江悦和鸣、和悦宸光;读南校区的是花语江南、润和天心序。哪个校区更好?我认为是一样的。他成绩要按一起算,纠结哪个校区好没意义。无论谁是校长,都不会厚此薄彼,让一个校区拖累另一个校区。无论哪个校区,都仍然是本部。为什么新校区那边,花语江南学区房价格便宜一些?原因不在初中,而在于小学。江悦和鸣因为小学也是老学校,所以贵;而花语江南的小学虽也是品牌学校,但也是新建的。要保险,就要多花一点成本!分享是一种美德,如果您身边刚好有朋友想买房,您可以转发给他! 您的朋友买到他满意且实惠的房子一定会感谢您的! 感谢您的信任与支持!
加小编微信了解更多好房信息!
