中国新一线城市
湖南自贸区、长沙经开区
双区坐标6A级高品质写字楼
【中部智谷产业园】
智谷中心—商务精英群集之地
品格、品质、品味
长沙高品质写字楼简报【20260409期】
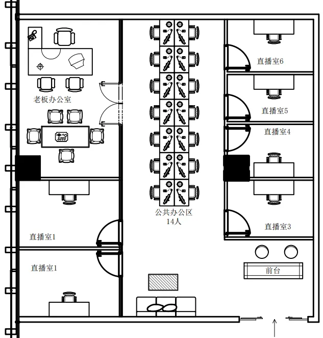
楼盘:中部智谷10栋1006
格局:7个直播间+一个老板室+14卡
朝向: 西
面积:249
物业费:6元/平/月
电费:0.9元/度左右浮动
空调费:12元/平,一年收取9个月
物业公司:中部智谷企业管理有限公司
楼宇配套:楼层管家:商务前台接待、中式接待区、咖啡吧,茶室、大型会议培训室、三重花园办公环境,三度绿化空间,百米高空1500平私享花园、配备银行、超市、食堂,同时底下有 600 个停车位、80 多个充电桩,停车充电方便,旁边就是企业服务中心,商标注册、企业咨询、政策咨询等都很便捷
园区政策:经开区与自贸区总部型经济楼宇,围绕“两个率先”目标,园区总部经济中心将聚焦工程机械及先进轨道交通装备、汽车及零部件、电子信息、数字经济、生物技术及生命健康等产业,聚集相关配套企业,构筑产业融合发展的新格局,最高可实现三年免租两年减半。
交通:地铁6号线龙华站150米(可换乘1-2-3-4-5号线)长沙南站15分钟,黄花机场10分钟,员工上下班便利,六位一体的交通路网,加速您的财富之路。
目前入驻企业58家,国/央/上市公司5家,成长性企业20家,初创型企业33家主要以汽车零部件设计、研发、生产、销售、电商、直播运营、农产品销售、软件产品研发等行业为主,行业类型广泛,种类多元化。
办事处联络员:李总18684996996(微信同号)
拎包入驻、轻装上阵
诚邀您从这里出发开创一番事业
