

本案位于长沙绿城青竹园,是一栋1200平方米的独栋别墅。设计以“光影筑境,禅意栖居”为主线,将极简主义的几何力量与东方意境中的静谧写意融为一体。

整体摒弃冗余修饰,以空间动线为脉络,以光影变化为笔触,在城市山林的隐逸语境中,打造出兼具艺术格调、全龄适配与生活温度的顶级私享宅邸,实现自然、建筑与生活的共生共融。
Part.1
入户礼序与核心动线
入户礼序区以旋转楼梯作为视觉与功能的中枢,串联上下各层。楼梯采用黑白交织的螺旋曲线,嵌入式灯带沿轮廓延展,从底部贯穿至顶层,每一步都带动光影的渐变。


从高处看,楼梯形似展开的螺钿,与下方弧形黑色台面形成对话,成为空间中的视觉地标。玄关延续沉静基调,穹顶设有圆月形光饰,配以苍翠植物,开门即呈现东方留白意境,迅速消解外界嘈杂,引导人缓慢进入室内深处。



Part.2
公共社交空间
公共社交区强调“通透联动、主次分明”。餐厅与客厅连为一体,形成完整的社交场景。餐厅中央为圆桌,纯白座椅围合出温和的聚餐氛围;顶部的环形灯盘与曲线光带相互交织,暖光洒下,与桌面光影及窗外树影相映。



背景墙采用黑色百叶窗调节光线,两侧黑白纹理饰面与木质线条形成对比,既提升精致感,又为家庭用餐与宴请营造仪式与私密并存的氛围。客厅采用挑高设计,全景落地窗将庭院的绿意和天光引入室内;浅色软装与空间底色协调,曲线造型的吊灯成为亮点,黑白撞色的艺术摆件点缀其间,让极简空间在光影变化中既有日常的松弛,也不失待客的礼仪。



Part.3
茶歇与功能办公区
茶歇与办公区体现了东方禅意与当代实用性的平衡。临泳池的茶室以整面竖向格栅为背景,暖光从格栅缝隙漫出;茶台正对庭院和泳池,一株绿植从水面伸展枝叶,水光、灯光与木纹肌理相互辉映,极致演绎“静、空、灵”的东方意境。


另一处八角形茶室更为温润,木质墙面围合出静谧感,黑色茶台配软包长凳,窗外绿意透过百叶窗洒入,成为品茶与冥想的私密角落。办公区延续极简风格,八边形深色顶面与曲线光带形成强烈视觉反差;整面开放式书架兼顾收纳与展示,书籍和摆件错落有序,保证专注工作的同时不失艺术格调,实现效率与审美的双重满足。



Part.4
休闲娱乐区
休闲娱乐区为宅邸注入活力。泳池区以模块化透光顶面为亮点,暖光透过材质表面漫射,与泳池的碧色水光交相辉映。



玻璃隔断将泳池区与健身区、影音区串联,既保持通透,又清晰划分功能边界,实现休闲、运动、娱乐的场景联动。光影在水面、墙面与地面之间流动,使每一次休闲活动都充满艺术氛围。



Part.5
卧室休息区
主卧打破常规,床头背景采用深色块面与立体折边设计,赋予空间雕塑感;纯白床品与黑色皮革床尾凳形成冷暖对照,球形台灯的暖光勾勒出温馨边缘。一侧的木质格栅墙面结合内嵌灯带,柔化了深色的厚重感;通过通透隔断直接连通卫浴区,动线流畅。卫浴区以深色为底,搭配黑白纹理地面,独立圆形浴缸临窗而设,窗外景色与柔和灯光交融,打造出松弛而奢华的沐浴体验。



儿童活动区则采用温暖木色为主调,斜顶下线性灯带勾勒建筑轮廓,悬浮楼梯配玻璃护栏,轻盈通透,弱化边界。柔软的毛绒家具、趣味摆件,加上透明隔断,既营造出童趣满满的成长空间,又方便家长随时看护,兼顾安全与趣味。







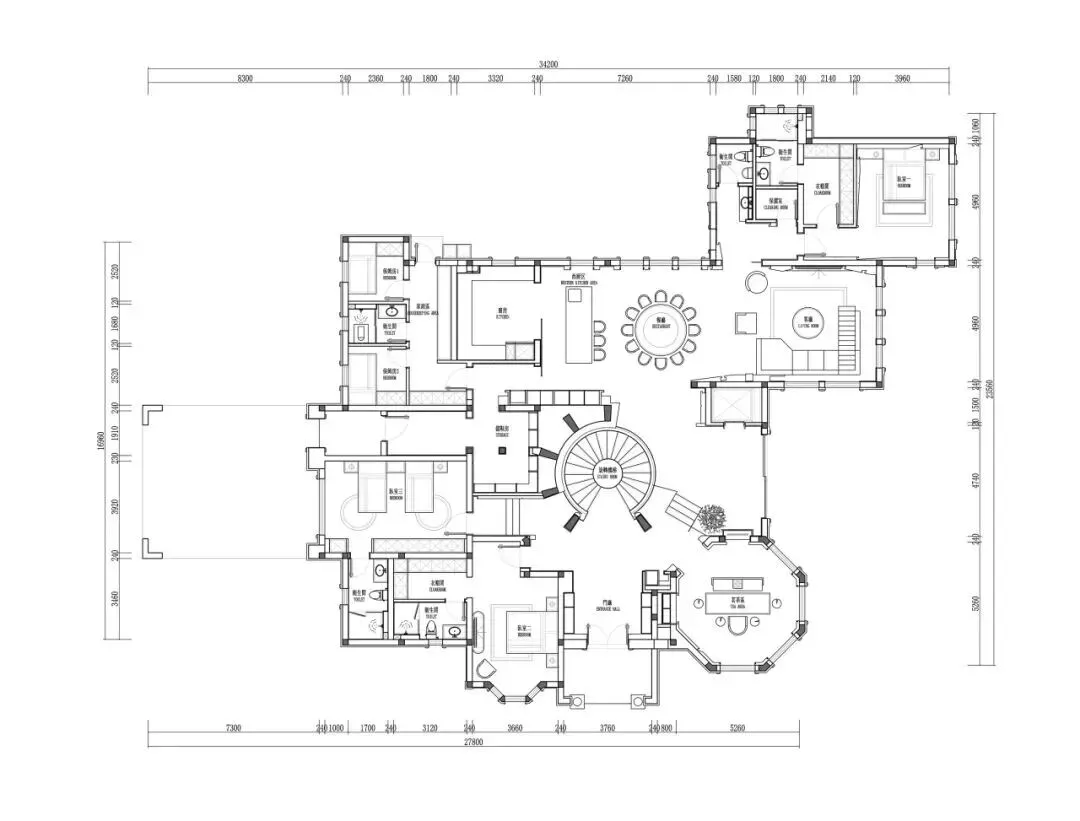
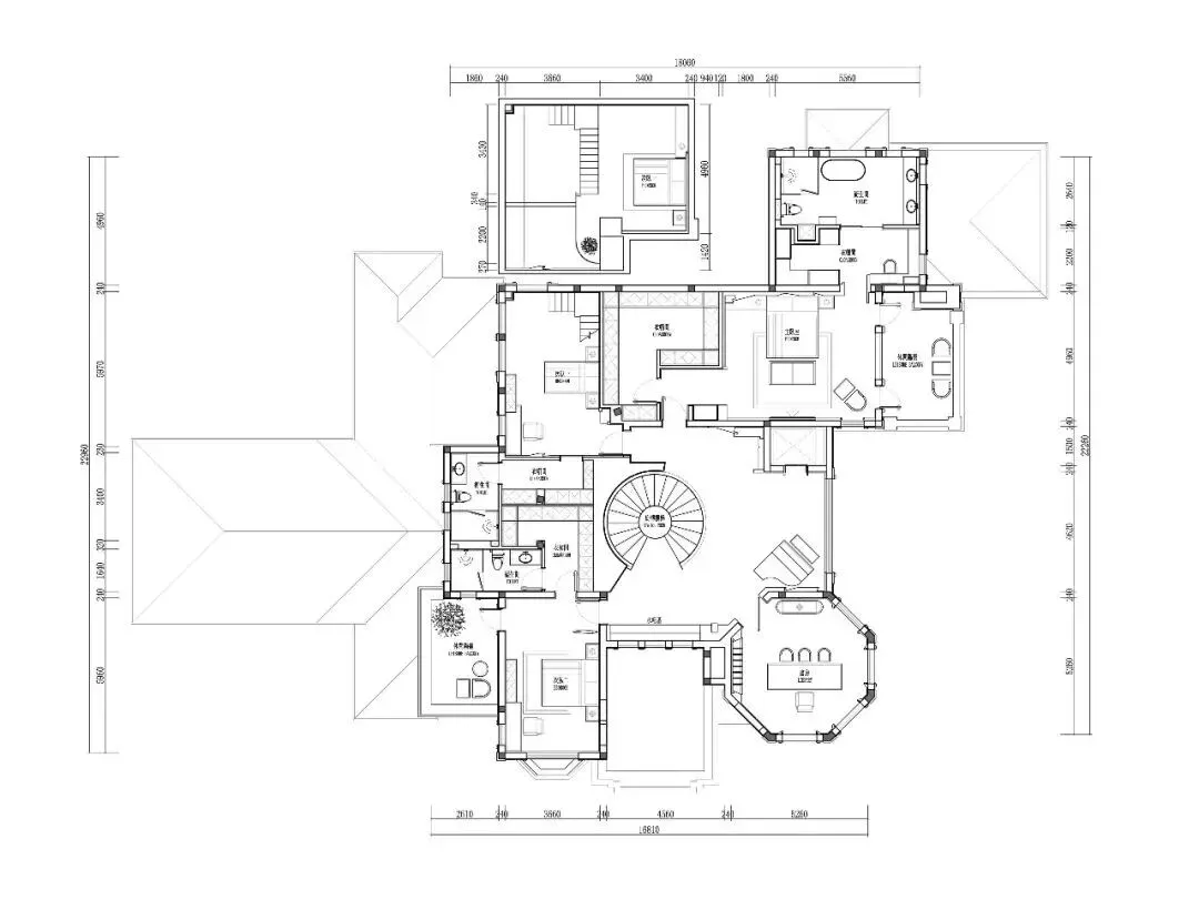
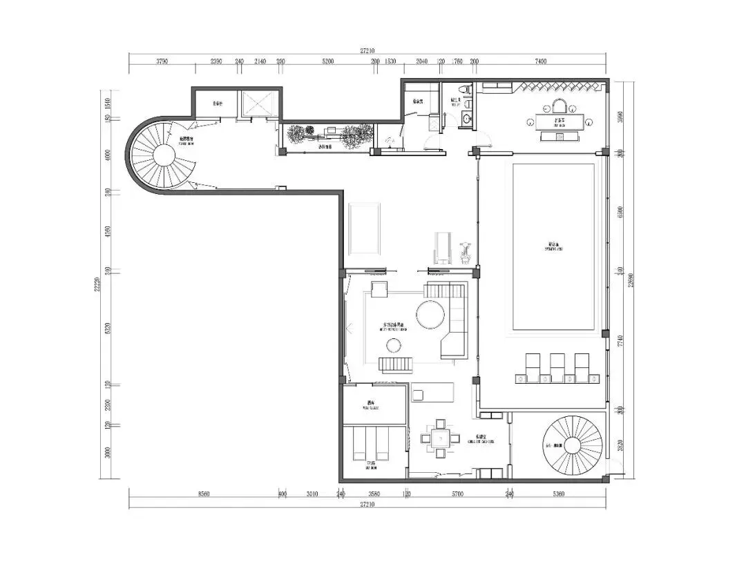
左右滑动查看1F、2F、-1F平面图
/
项目信息
项目位址:长沙绿城青竹园揽秀园
项目地址:湖南长沙
项目面积:1200平米
设计团队:山乙设计
主创设计:赵益平
空间用材:烟熏木饰面、银梨木饰面、岩板、涂料、现代灰大理石空间摄影:史云峰
选用品牌:湖南道喜家居-三只喜鹊、德国诗珑涂料、陶岩社高端岩板
/
主创设计

赵益平
山乙建设 创始人

山乙建设主营室内外空间设计、软装陈列设计、工程施工,产品以及核心技术研发。是一家以设计为主导,品质为前提,满足你对私人定制高标准需求的全案执行落地公司。
公司团队由一群屡获行内权威大奖的精英设计团队组成。有着非常丰富的多领域项目主持经验。秉承创新、改革、研究、功能衍生美学的设计理念。致力于突破室内设计行业大环境现状,打造独属于对品质有着高标准追求,对审美有着高标准要求的设计品牌。
公司拥有强大的研发团队,将针对设计体系,工程体系以及软装体系进行不断研发及创新。是国内富有创造力与艺术价值的设计企业之一。公司将秉承以设计证明私人定制的核心原则,以高标准的施工品质为前提保障,以高品质软装产品配套的基本原则服务于每一位客户。
END
策划|Anne
文字编辑:Iris
排版编辑|小十
校审|Ivy
视觉设计|Catherine
图片版权|山乙建设
出品|十间坊
原创内容,欢迎任何形式的转载,注明来源。
@投稿 @商务 : shijianfang-2015


马蹄莲设计 陈熠 X 南京350㎡ 桃源雅居

余颢凌 X 深圳700㎡山海别墅里的时光与温情

